Наружная реклама
Реклама на радио
Реклама на телевидении
Реклама в интернете и печатных СМИ
Реклама в помещениях
Реклама на/в транспорте
Изготовление рекламы
в Чебоксарах
Фасад Медиа Групп – рекламно-производственная компания, оказывающая услуги по изготовлению стел для АЗС в Чебоксарах и Республике Чувашия. Мы оказываем полный спектр услуг:
РПК «Фасад Медиа Групп» предлагает гибкие условия и выгодные цены изготовления стел для АЗС в Чебоксарах и Республике Чувашия. Для получения коммерческого предложения по изготовлению и установке стел для АЗС в Чебоксарах обращайтесь по телефону: 8 800 201-23-74 или оставьте заявку на сайте. Изготовление стел для АЗС «под ключ» гарантируем!
Стелы для АЗС пользуются большим спросом среди представителей бизнеса. Востребованность данного вида рекламной конструкции объясняется целым рядом факторов:
Стелы для АЗС являются эффективным средством для рекламирования товаров и услуг с целью увеличения потока клиентов и повышения процента продаж. Многие клиенты нашего рекламного агентства заказывают изготовление стелы для АЗС на постоянной основе, добиваясь при этом высоких результатов в продвижении бренда компании, информировании населения о продаваемых товарах и оказываемых услугах.
Рекламно-производственная компания "Фасад Медиа Групп" занимается изготовлением стел для АЗС «под ключ»:
Выбирая нашу компанию, вы получаете высокий уровень сервиса и разумные цены. Обращайтесь к нам. У нас выгодно!
ИЗГОТОВЛЕНИЕ, ДОСТАВКА И УСТАНОВКА СТЕЛ ДЛЯ АЗС В ЧЕБОКСАРАХ

Планируете изготовление стел для АЗС в Чебоксарах? – обращайтесь по телефону: 8 800 201-23-74 или оставьте заявку на сайте. Изготовление стел для АЗС «под ключ» гарантируем!
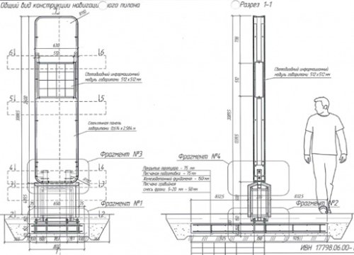
Что такое стелы для АЗС?
Наши клиенты часто задают вопрос: «Что такое стелы для АЗС?». Отвечая на данный вопрос, специалисты нашей компании указывают, что стела для АЗС представляет собой рекламно-информационную конструкцию, которая устанавливается на территории АЗС с целью информирования автомобилистов о видах подаваемого бензина, ценах на топливо, об оказываемых на территории автозаправки услугах и другой важной и необходимой информации. Таким образом, можно сделать вывод, что стела АЗС является необходимым инструментом для информирования населения, в том числе и в рекламных целях.
Примеры стел для АЗС приведены ниже:

Стелы для АЗС. Пример 1

Стелы для АЗС. Пример 2

Стелы для АЗС. Пример 3

Стелы для АЗС. Пример 4

Стелы для АЗС. Пример 5
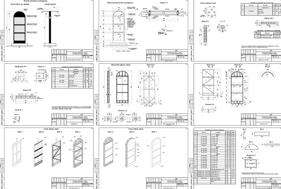
Какие бывают виды стел для АЗС?
Существует большое количество стел для АЗС. Все стелы для АЗС могут быть объединены в различные группы по различным основаниям:
1) По материалу изготовления:
2) По наличию сторон:
3) По разборности:
4) По наличию подсветки:
5) По наличию движения:
Как видим, существует большое количество стел для АЗС самого различного вида, способные привлекать внимание потенциальных клиентов и покупателей.

Сколько стоит изготовление стел для АЗС в Чебоксарах?
Стоимость изготовления стел для АЗС в Чебоксарах не является фиксированной. Цены вариативны и зависят от различных факторов. Большое влияние на ценовую политику оказывают:
Дополнительно необходимо отметить, что качество материалов, сложность дизайн-проекта и объём заказа являются основными факторами, влияющими на стоимость изготовления стел для АЗС. Вариативность форматов данной рекламной конструкции позволяет заказчикам даже с небольшим бюджетом изготавливать стелы для АЗС.
Можно заключить, что изготовление стел для АЗС в Чебоксарах и Республике Чувашия стоит недорого. Денежные средства, вложенные в изготовление данного вида рекламной конструкции, окупаются быстро, а высокая эффективность стел для АЗС способствует увеличению потока клиентов и повышению процента продаж.
Планируя изготовление стел для АЗС, заказчик, зачастую, во главу угла ставит именно финансовый аспект. Поэтому стоимость изготовления рекламно-информационных конструкций в Чебоксарах является важным вопросом. Для получения коммерческого предложения об условиях и ценах изготовления стел для АЗС в Чебоксарах необходимо предоставить следующую информацию:
Предоставление указанной выше информации является необходимым условием для получения ценового предложения (прайса) по изготовлению рекламно-информационной конструкции для АЗС. После получения указанной информации наши менеджеры смогут подготовить коммерческое предложение с учетом ваших целей и задач.

Целевая аудитория рекламы в Чебоксарах
Для получения максимального эффекта от установки стелы на АЗС в Чебоксарах необходимо точно определить целевую аудиторию, на которую ориентирована рекламно-информационная конструкция. Данный фактор, зачастую, является краеугольным, особенно для тех автозаправочных станций, у которых скромный бюджет. Для чего необходимо точно знать целевую аудиторию? Точечно воздействуя на заранее определенную аудиторию, можно достичь высокой эффективности при установке рекламно-информационной конструкции в том или ином месте что, в свою очередь, приведет к повышению покупательского спроса и увеличению клиентов.
Возникает закономерный вопрос: «На кого ориентированы стелы, устанавливаемые на АЗС в Чебоксарах?». Отвечая на данный вопрос, можно отметить, что данные информационные конструкции ориентированы на людей с высоким и средним уровнем дохода, воздействуют на людей среднего и старшего возраста, автомобилистов, имеющих высшее и среднее образование, высокий и средний заработок, собственников бизнеса, и работников по найму, любящих путешествие, отдых, ведущих активный образ жизни, старающихся следовать моде в сфере гаджетов и компьютерной техники.

Услуги по изготовлению стел для АЗС в Чебоксарах
Компания "Фасад Медиа Групп" изготавливает стелы для АЗС в Чебоксарах на профессиональной основе. Мы оказываем следующий перечень услуг:
Как можно видеть, наша компания оказывает полный перечень услуг по изготовлению стел для АЗС в Чебоксарах. Благодаря большому опыту работы и профессионализму наших рабочих, мы качественно оказываем услуги, а работы всегда выполняем в полном объеме и в установленный срок.

Сроки изготовления стел для АЗС в Чебоксарах
Срок изготовления стел для АЗС является одним из важных факторов, поскольку чем быстрее стела будет установлена, тем быстрее тысячи потенциальных покупателей смогут обратить внимание на отображаемую информацию. Зачастую, наши клиенты спрашивают: «Каков минимальный срок изготовления стел для АЗС в Чебоксарах?». Отвечая на данный вопрос, можно отметить, что минимальный срок изготовления стел для АЗС в Чебоксарах составляет 3 рабочих дня. Что касается максимального срока выполнения работ, то он рассчитывается индивидуально исходя из вида конструкции, срочности заказа, сезонности, а также наличия свободных трудовых ресурсов.
Изготовление стел для АЗС можно разделить на несколько этапов:
Несмотря на то, что минимальный срок изготовления стел для АЗС составляет 3 рабочих дня, в некоторых случаях срок изготовления данной конструкции может быть продолжительным. Для получения более подробной информации по данному вопросу, обращайтесь к специалистам нашей компании. Будем рады помочь.

Плюсы изготовления стел для АЗС в Чебоксарах
Рекламно-информационные конструкции пользуются спросом среди представителей бизнеса, поскольку являются эффективным и выгодным решением для увеличения информированности населения и, как следствие, повышения процента продаж. Стелы для АЗС сочетают в себе преимущества, которые делают их наиболее популярными среди всех средств привлечения внимания потенциальных клиентов или покупателей. Назовем некоторые плюсы стел для АЗС:
Как видно, стелы для АЗС обладают целым набором положительных черт, которые способствуют их популярности среди владельцев автозаправок.

Какова рекламно-информационная эффективность стел для АЗС в Чебоксарах?
Стелы для АЗС очень популярны и широко распространены в Чебоксарах и Республике Чувашия в качестве рекламно-информационных конструкций. Эффективность стел для АЗС достигается за счет ряда факторов. Особенно заметное влияние оказывают:
Востребованность наружной рекламы обусловлена тем, что установка конструкции наружной рекламы позволяет существенно увеличить продажи и привлечь новых покупателей и клиентов. Изготовление и установка рекламной конструкции позволяет собственнику бизнеса увеличить прибыль. Пожалуй, это самое главное, для чего нужна реклама.

Способы оплаты работ по изготовлению стел для АЗС в Чебоксарах
Рекламно-производственная компания «Фасад Медиа Групп» предлагает своим клиентам следующие способы оплаты работ по изготовлению и установке стел для АЗС:
Внимание! Мы работаем по 100% предоплате. После поступления денежных средств начинается процесс изготовления рекламы. Днем поступления оплаты считается день зачисления денежных средств на расчетный счет ООО «Фасад Медиа Групп».
| Вид услуги | Сроки оказания услуг | Стоимость | Оплата | Налог | Отчет |
|---|
ПРЕИМУЩЕСТВА УСТАНОВКИ СТЕЛЫ ДЛЯ АЗС В ЧЕБОКСАРАХ
Широкая целевая аудитория
В городской среде установлено большое количество рекламных конструкций, которые используются рекламодателями в целях продвижения бренда компании, популяризации товаров и услуг, привлечения новых и удержания старых клиентов и покупателей. Каждый вид рекламы обладает своими отличительными особенностями, характеристиками и преимуществами. Важной особенностью любой рекламы является возможность и способность воздействовать на широкий круг людей, т.е. на большую целевую аудиторию. Вместе с тем, порой сложно добиться того, чтобы реклама работала на большую группу людей. Зачастую рекламное объявление воздействует только на потенциальных заказчиков и клиентов, не затрагиваю тех людей, которым данное рекламное предложение также может быть интересно. А это проблема, поскольку рекламодатель некоторую часть своих денег тратит впустую, что приводит к снижению эффективности рекламной кампании. Возникает вопрос: «Существует ли рекламная конструкция, с помощью которой можно привлечь внимание потенциальных покупателей?». На данный вопрос можно дать положительный ответ. Речь идет о стелах для АЗС.
Стелы для АЗС воздействуют на широкий круг людей, охватывая максимальное количество потенциальных покупателей, клиентов, посетителей. Можно смело заявить, что стелы для АЗС охватывают всех горожан, проходящих или проезжающих мимо рекламной конструкции.
Воздействие на максимальное количество людей является несомненным достоинством стел для АЗС. Устанавливая стелы для АЗС, можно массово воздействовать на целевую аудиторию, повышая тем самым эффективность рекламы.
Синергетический эффект рекламы
Синергия (греч. συνεργία – сотрудничество, содействие, помощь, соучастие) – взаимодействие двух и более факторов, совместное действие которых приводит к усиливающемуся эффекту, который, в свою очередь, превосходит простую сумму действий каждого из указанных факторов.
В рекламной сфере синергия возможна при размещении объявлений на различных типах рекламных конструкций, демонстрации рекламных объявлений через различные каналы распространения информации (телевидение, радио, интернет). Синергия наружной рекламы заключается в том, что реклама, размещенная на стелах для АЗС, отлично сочетается с рекламой на телевидении, радио, интернет или транспорте.
Эффект от синергетической рекламной кампании колоссален и позволяет значительно увеличить поток клиентов и, как следствие, повысить процент продаж. Вместе с тем, нужно оговориться, что реклама, размещенная на улицах города, отлично работает не только в купе с иными видами рекламы, но и самостоятельно. Многие клиенты нашего рекламного агентства используют только наружную рекламу для достижения целей рекламной кампании. Следовательно, наружная реклама может применяться сама по себе с большой эффективностью.
Используя возможности наружной рекламы и как основного, и как дополнительного источника коммуникации с потребителем, вы сможете значительно повысить узнаваемость вашего бренда, товара или оказываемой услуги. В качестве примера можно привести западный опыт: крупнейшие бренды размещают рекламу не только в СМИ, но и важное место в рекламном бюджете отводят на наружную рекламу. Как показывают исследования, благодаря рекламе на улицах города рост объема продаж в среднем составляет 16%, а в отдельных случаях колеблется от 17% до 19%. Можно сделать вывод, что реклама, установленная на улицах города, отлично зарекомендовала себя и как основной вид рекламы, и как вспомогательный для продвижения бренда, товара или услуги.
Высокая частота контактов с наружной рекламой
Реклама на улицах города является хорошо развитым сегментом отечественного рекламного рынка. Рекламодатели по достоинству оценили эффективность наружной рекламы. Многие клиенты нашего рекламного агентства используют стелы для АЗС в качестве единственного и основного средства информирования населения о месте нахождения магазина, торгового центра или офиса. В чем причина популярности стел для АЗС среди представителей отечественного бизнеса? Ответ кроется в частоте контактов потенциальных покупателей с рекламой.
В городе люди сталкиваются с рекламными конструкциями различных форматов. Частота контактов потенциальных клиентов с рекламой, размещенной на стелах для АЗС, находится на очень высоком уровне. По статистике, с данной рекламной конструкцией люди могут контактировать до нескольких тысяч раз в сутки.
Высокая частота контактов является важным составляющим успеха любой рекламной кампании. Устанавливая стелы для АЗС и размещая на них рекламу, рекламодатель обеспечивает массовый охват целевой аудитории и значительно повышает вероятность привлечь новых клиентов и увеличить процент продаж.
Приведем несколько цифр: с точки зрения запоминаемости, результаты исследования оказались ошеломительными: 20% опрошенных в деталях вспомнили стелу для АЗС, которую они видели последнее время, при этом больше половины – в течение последних трех дней. Причем, запомнилась не только информация, размещенная на стеле для АЗС, но и местоположение самой АЗС.
Быстрое достижение целей рекламной кампании
Планируя размещение рекламы, рекламодатели ставят перед собой различные цели. Так, целями рекламной кампании могут быть:
Каждая цель рекламной кампании требует решения определенных задач для ее достижения. Важной задачей, которую необходимо решить перед запуском любой рекламной кампании, является задача выбора рекламной площадки или рекламной конструкции. Данный вопрос является крайне важным, поскольку от его решения зависит успех рекламной кампании и ее эффективность. Выбор рекламной площадки или конструкции зачастую вызывает затруднения. И действительно, как выбрать рекламный формат или конструкцию? В какой вид рекламы инвестировать денежные средства? Чего ожидать от различных видов рекламы? Отвечая на данные вопросы, необходимо отметить, что выбор конкретного вида рекламы лучше доверить профессионалам, которые знают все тонкости и нюансы. Однако, если говорить коротко, то рекламу нужно выбирать ту, которая сможет обеспечить быстрое достижение поставленных целей. Без сомнения, такой рекламно-информационной конструкцией является стела для АЗС.
Почему стелы для АЗС обеспечивают быстрое достижение рекламных целей? Приведем несколько соображений по этому поводу:
Можно привести еще ряд положений, благодаря которым стелы для АЗС имеют приоритет в быстроте достижения рекламных целей. Однако главным доводом может быть то, что миллионы человек по всей стране ежегодно инвестируют большие средства в наружную рекламу, получая при этом надлежащий экономический эффект.
Низкие цены изготовления наружной рекламы
Как указывалось, выше, существуют различные виды рекламы, которые имеют популярность у представителей отечественного бизнеса. Одна реклама является более эффективной, другая менее. Однако существует один вид рекламы, который является крайне эффективным и менее затратным. Речь идет о стелах для АЗС.
Реклама на улицах города относится к одним из самых эффективных способов продвижения товаров и услуг. Секрет высокой эффективности кроется, в том числе и в низких ценах производства и размещения рекламных конструкций.
Низкая стоимость производства стел для АЗС выгодно отличает данный вид наружной рекламы от иных видов. Вместе с тем, цены на изготовление стел для АЗС различны и варьируются в зависимости от:
Однако в пересчете на количество контактов потенциальных клиентов с вашей рекламно-информационной конструкцией стоимость изготовления стел для АЗС не высока.
СОВЕТЫ ПО ИЗГОТОВЛЕНИЮ СТЕЛ ДЛЯ АЗС В ЧЕБОКСАРАХ

Определите цели и задачи установки стел для АЗС
Планируя установку рекламной конструкции, рекламодатель надеется на успех и хороший эффект. Но нужно понимать, что эффективность рекламной конструкции зависит от многих факторов, а сама ее установка требует тщательной подготовки. Добиться желаемого успеха в рекламе можно только при наличии заранее подготовленной стратегии. Многие наши клиенты зачастую спрашивают, с чего начать планирование рекламной кампании? Мы отвечаем: с постановки цели и определения задач, которые необходимо решить, чтобы достичь желаемого результата.
Все цели рекламной кампании можно объединить в три большие группы:
Имиджевые цели позволяют обратить внимание потенциальных клиентов к бренду компании. Стимулирующие цели призывают купить товар или заказать услугу. Стабилизирующие цели предназначены для поддержания интереса покупателей к бренду, товару или услуге. Таким образом, рекламодателю предстоит определиться, какую цель он планирует достичь.
После того, как рекламодатель определился с целью рекламной кампании, ему предстоит решить круг задач, важными из которых являются:
Рекламную кампанию можно назвать успешной в том случае, если она представляет собой сочетание качественной рекламной конструкции и профессионального выбора средств и способов достижения поставленных целей.
Следовательно, перед тем, как приступать к реализации задуманных рекламных проектов, необходимо понять, ради чего затевается рекламная кампания, какова ее цель и какие задачи необходимо будет решить в процессе ее реализации? Задайте себе простой вопрос: что я хочу получить по завершению рекламной кампании? Ответом на него и будет ваша цель.
Исследование рынка
После того, как поставлены цели рекламной кампании, необходимо провести исследования рынка или маркетинговые исследования. Что нужно изучить?
Уточните целевую аудиторию
Как уже говорилось выше, важным этапом в проведении эффективной рекламной кампании является правильное определение целевой аудитории вашего товара или услуги. Что такое «целевая аудитория»? Под целевой аудиторией следует понимать группу людей, которые нуждаются или могут нуждаться в приобретении вашего товара или услуги. Конечно, круг таких людей может быть очень широк. Следовательно, чтобы его сузить, необходимо задать себе вопросы:
Получив ответы на данные вопросы, мы сможем составить примерный портрет человека, входящего в целевую аудиторию вашего товара или услуги. От правильного понимания целевой аудитории зависит количество мест установки рекламной конструкции. Допустив ошибку с целевой аудиторией, велик риск провести рекламную кампанию, не получив в итоге ожидаемого положительного результата. Если с вопросом определения целевой аудитории у вас возникают проблемы, вы можете обратиться в рекламное агентство «Фасад Медиа Групп». Наши специалисты смогут вам помочь.
Подберите необходимый вид рекламной конструкции
Эффективность рекламной кампании во многом определяется правильно выбранной рекламной конструкцией. Зачастую, для определения требуемого вида рекламной конструкции, заказчики руководствуются бюджетом. Вместе с тем, данная позиция хоть и логична, но не всегда верна. При выборе вида конструкции наружной рекламы необходимо руководствоваться тем товаром или услугой, которую вы предлагаете клиенту или покупателю. Вид рекламной конструкции должен давать возможность человеку хорошо рассмотреть товар, изучать его, получить исчерпывающую информацию о контактах, адресах фирмы, которая рекламируется. Если рекламируемый товар или услуга требуют большого формата, то лучше не экономить и использовать надлежащий формат. Поверьте, от этого будет больше пользы и эффекта.
В случае, если вы затрудняетесь с выбором формата рекламной конструкции, обратитесь к менеджерам нашего рекламного агентства. Мы будем рады помочь.
Что такое стелы для АЗС?
Наши клиенты часто задают нашим менеджерам вопрос: «Что такое стелы для АЗС?». Отвечая на данный вопрос, специалисты нашей компании указывают, что стела для АЗС представляет собой рекламно-информационную конструкцию, которая устанавливается на территории АЗС с целью информирования автомобилистов о видах подаваемого бензина, ценах на топливо, об оказываемых на территории автозаправки услугах и другой важной и необходимой информации. Таким образом, можно сделать вывод, что стела АЗС является необходимым инструментом для информирования населения, в том числе и в рекламных целях.
Примеры стел для АЗС приведены ниже:

Стелы для АЗС. Пример 1

Стелы для АЗС. Пример 2

Стелы для АЗС. Пример 3

Стелы для АЗС. Пример 4

Стелы для АЗС. Пример 5
Какие бывают виды стел для АЗС?
Существует большое количество стел для АЗС. Все стелы для АЗС могут быть объединены в различные группы по различным основаниям:
1) По материалу изготовления:
2) По наличию сторон:
3) По разборности:
4) По наличию подсветки:
5) По наличию движения:
Как видим, существует большое количество стел для АЗС самого различного вида, способные привлекать внимание потенциальных клиентов и покупателей.
Для чего нужны стелы для АЗС?
Потребность в стелах для АЗС велика и обусловлена целым рядом факторов, способствующих популяризации данной рекламно-информационной конструкции на рынке. Возникает вопрос: каково назначение стел для АЗС? Необходимо отметить, что стелы для АЗС используются в нескольких целях, при этом главными являются:
1) стелы для АЗС – элемент привлечения внимания;
2) стелы для АЗС – часть имиджа АЗС;
3) стелы для АЗС – помощь в конкуренции.
В первом случае, стелы для АЗС используются, чтобы помочь автовладельцам быстро найти информацию продаваемых видах топлива, а также о предлагаемых иных товарах и услугах. Не секрет, что каждый предприниматель, владеющий автозаправочной станцией, желает быть более заметным для автомобилистов. Данная потребность особенно значима в условиях, когда город пестрит неоновыми вывесками и рекламными конструкциями. Если не устанавливать стелы для АЗС, то водитель может и не заметить АЗС. Для собственника бизнеса это может привести к потере клиентов и, как следствие, к потере прибыли, что всегда негативно сказывается на эффективности бизнеса.
Во втором случае стелы для АЗС могут использоваться как элемент имиджа, позволяющий сформировать положительный образ заправочной станции. Следовательно, стелы для АЗС выступают в качестве брендовой рекламно-информационной конструкции. Рекламодатель может самостоятельно выбрать вид стелы, габариты, материал изготовления и форму указанной конструкции. Это позволяет выделить свою заправку и сделать ее более отличимой от иных заправочных станций.
И наконец, стелы для АЗС могут помочь в борьбе за автолюбителей, т.е. могут использоваться как преимущество в конкурентной борьбе. Данное обстоятельство играет главную роль в условиях перенасыщения городской среды автозаправочными станциями. Зачастую, в незнакомой городской среде водителям сложно ориентироваться. Следовательно, бизнесмену необходимо выделить именно свой бизнес и привлечь, таким образом водителей на собственную АЗС. Для этого предприниматели зачастую используют именно стелы для АЗС, выполненные по индивидуальному эскизу, способные издалека обратить на себя внимание автолюбителей.
Из изложенного выше можно сделать вывод, что стелы для АЗС являются незаменимой рекламной конструкцией, которая используется для привлечения внимания к автозаправочной станции, способствует популяризации бизнеса, что приводит к успешному ведению бизнеса.

Что такое проектирование стел для АЗС?
Под проектированием стел для АЗС принято понимать процесс определения архитектуры, компонентов, интерфейсов и других характеристик рекламно-информационной конструкции. Результатом проектирования стелы является технический проект – целостная совокупность моделей, свойств или характеристик, описанных в форме, пригодной для реализации указанной конструкции.
Проектирование стел для АЗС представляет собой целенаправленную деятельность, которая обладает последовательностью процедур, ведущих к достижению эффективных решений. В настоящее время предложен ряд структур и алгоритмов проектирования стел для АЗС, совпадающих в основных чертах и различающихся только в содержании или названии отдельных этапов.
Методы проектирования стел для АЗС
К методам проектирования стел для АЗС относятся следующие:
1) Эвристические методы:
2) Экспериментальные методы:
3) Формализованные методы
Каждый из указанных методов должен использоваться в системе остальных подходов для того, чтобы процесс проектирования смог завершится в срок и с высокой степенью результативности.
Этапы проектирования стел для АЗС
Выше указывалось, что проектирование стел для АЗС – это процесс, состоящий из целого ряда логически последовательных действий, которые представляют собой систему и направлены на определенный результат, а именно: подготовка технического проекта стел для АЗС.
Процесс проектирования стел для АЗС разбивается на несколько этапов. К основным этапам проектирования указанной рекламной конструкции относятся:
Как видим, процесс проектирования стел для АЗС является многоэтапным и требует достаточной компетенции. Для того, чтобы данный процесс завершился с надлежащим эффектом, необходимо обращаться к специалистам. Только таким образом можно исключить ошибки и неточности в проектировании стел для АЗС.

Стоимость проектирования стел для АЗС
Зачастую, клиенты нашей компании задают вопрос о стоимости проектирования стел для АЗС? Отвечая на данный вопрос, можем привести следующие цифры:
Обращаем внимание, что указанные суммы не являются публичной офертой и рассчитываются в каждом случае индивидуально. Процесс проектирования стел для АЗС является уникальным и не рутинным мероприятием, которое требует индивидуального подхода. Поэтому, для получения более точной информации о том, сколько стоит спроектировать стелы для автозаправки, необходимо обращаться к специалистам нашей компании. Будем рады сотрудничеству.
Уважаемые друзья! За изготовлением и установкой стел для АЗС обращайтесь в компанию «Фасад Медиа Групп». Высокий уровень сервиса и низкие цены гарантируем. Мы все сделаем сами: дизайн и эскиз макета, подготовка документов, согласование и монтаж. Фотоотчёт предоставляем бесплатно и в 100% объеме.
Обращайтесь 88002012374@mail.ru или 8 800 201-23-74
Что такое согласование рекламной конструкции?
Согласование рекламы – это получение разрешения в компетентных органах государственной власти или органах местного самоуправления на установку и эксплуатацию рекламной конструкции согласно утвержденного технического проекта. Процесс согласования рекламной конструкции регламентирован различными законодательными актами, в том числе некоторыми положениями ФЗ «О рекламе».
Согласно ст. 3 данного Федерального закона реклама – информация, распространенная любым способом, в любой форме и с использованием любых средств, адресованная неопределенному кругу лиц и направленная на привлечение внимания к объекту рекламирования, формирование или поддержание интереса к нему и его продвижение на рынке. Следовательно, любая конструкция, которая относится к рекламной, требует получения разрешения на ее установку и эксплуатацию.
Для чего нужно согласовывать рекламу в органах государственной или муниципальной власти?
В ст.5 ФЗ «О рекламе» приведены общие требования к рекламе, среди которых особо отмечено, что реклама должна быть добросовестной и достоверной. Недобросовестная реклама и недостоверная реклама не допускаются. Органы государственной власти, выдавая разрешение на установку и эксплуатацию рекламной конструкции, должны удостовериться, что конструкция содержит добросовестную рекламу и достоверную информацию. Более того, особое внимание уделяется тому, чтобы реклама:
Таким образом, при выдаче разрешения на установку и эксплуатацию рекламы, органы государственной власти дают положительную оценку рекламной конструкции, соглашаясь с тем, что данная реклама не противоречит требования законодательных актов РФ.
Нужно ли согласовывать стелы для АЗС в органах государственной власти?
Как указано в ст.9 ФЗ «О рекламе», установка и эксплуатация рекламной конструкции допускаются при наличии разрешения на установку и эксплуатацию рекламной конструкции (далее также – разрешение), выдаваемого на основании заявления собственника или иного указанного в частях 5, 6, 7 данной статьи законного владельца соответствующего недвижимого имущества либо владельца рекламной конструкции органом местного самоуправления муниципального района или органом местного самоуправления городского округа, на территориях которых предполагается осуществлять установку и эксплуатацию рекламной конструкции.
Таким образом, любая рекламная конструкция перед ее установкой и эксплуатацией на территории муниципального района или местного самоуправления, должна пройти процесс согласования в органах муниципальной власти или в органах государственной власти. Возникает закономерный вопрос: необходимо ли получать разрешение на установку и эксплуатацию стел для АЗС? На данный вопрос необходимо ответить утвердительно, сказав, что перед установкой стелы для АЗС необходимо согласовать проектную документацию данной рекламно-информационной конструкции в органе муниципальной власти (администрации города), поскольку данная рекламно-информационной конструкция устанавливается на территории муниципального района или местного самоуправления.

Какова процедура согласования стел для АЗС в гос. органах?
Зачастую клиенты нашей компании спрашивают: каким образом проходит процесс согласования стел для АЗС в органах государственной власти? Отвечая на данный вопрос, необходимо отметить, чтобы получить разрешение на установку и эксплуатацию стел для АЗС, необходимо:
Как видим, процесс получения разрешения на установку и изготовление стел для АЗС не является сложным. Вместе с тем, процесс подготовки документов лучше доверить профессионалам, чтобы получить положительное решение органа власти по вопросу согласования стел для АЗС.

Что делать в случае отказа госоргана в выдаче разрешения на установку и эксплуатацию стелы для АЗС?
Нередки случаи, когда органы государственной или муниципальной власти отказывают в выдаче разрешения на установку и эксплуатацию стелы для АЗС. Возникает вопрос, что делать в этом случае? Наш ответ: необходимо уточнить все замечания, выяснить ошибки, которые были допущены при подготовке проектной документации, выяснить детально, в чем были допущены неточности, повлиявшие на отрицательный исход процесса получения разрешения на установку и эксплуатацию рекламно-информационной конструкции. Далее необходимо исправить все допущенные ошибки и подать документы повторно. При этом необходимо помнить, что повторная подача заявления на согласование стелы для АЗС требует повторной уплаты государственной пошлины. Это один из важных моментов, о котором иногда забывают. Вместе с тем, если не предоставить квитанцию об уплате госпошлины, вам могут отказать по формальным основаниям. Будьте внимательны!
Сколько стоит согласование (получение разрешения) стелы для АЗС в органах власти?
Приводим примерную стоимость согласования установки и эксплуатации стелы для АЗС в органах власти:
|
Вид услуги |
Сроки |
Стоимость |
|
Составление эскизного проекта |
от 5 рабочих дней |
от 15000 руб. |
|
Изготовление технического проекта |
от 3 рабочих дней |
от 18000 руб. |
|
Сбор необходимых документов |
от 1 рабочего дня |
от 5000 руб. |
|
Подача документов |
от 1 рабочего дня |
от 3000 руб. |
|
Повторная подача документов |
от 3 рабочих дней |
от 1500 руб. |
|
Уплата госпошлины |
от 1 рабочего дня |
от 2000 руб. |
*Стоимость не является публичной офертой
Уважаемые друзья! За изготовлением и установкой стел для АЗС обращайтесь в компанию «Фасад Медиа Групп». Высокий уровень сервиса и низкие цены гарантируем. Мы все сделаем сами: дизайн и эскиз макета, подготовка документов, согласование и монтаж. Фотоотчёт предоставляем бесплатно и в 100% объеме.
Обращайтесь 88002012374@mail.ru или 8 800 201-23-74
Сколько стоит изготовление стел для АЗС в Чебоксарах?
Стоимость изготовления стел для АЗС в Чебоксарах не является фиксированной. Цены вариативны и зависят от различных факторов. Большое влияние на ценовую политику оказывают:
Дополнительно необходимо отметить, что качество материалов, сложность дизайн-проекта и объём заказа являются основными факторами, влияющими на стоимость изготовления стел для АЗС. Вариативность форматов данной рекламной конструкции позволяет заказчикам даже с небольшим бюджетом изготавливать стелы для АЗС.
Можно заключить, что изготовление стел для АЗС в Чебоксарах и Республике Чувашия стоит недорого. Денежные средства, вложенные в изготовление данного вида рекламной конструкции, окупаются быстро, а высокая эффективность стел для АЗС способствует увеличению потока клиентов и повышению процента продаж.
Планируя изготовление стел для АЗС, заказчик, зачастую, во главу угла ставит именно финансовый аспект. Поэтому стоимость изготовления рекламно-информационных конструкций в Чебоксарах является важным вопросом. Для получения коммерческого предложения об условиях и ценах изготовления стел для АЗС в Чебоксарах необходимо предоставить следующую информацию:
Предоставление указанной выше информации является необходимым условием для получения ценового предложения (прайса) по изготовлению рекламно-информационной конструкции для АЗС. После получения указанной информации наши менеджеры смогут подготовить коммерческое предложение с учетом ваших целей и задач.
Услуги по изготовлению стел для АЗС в Чебоксарах
Компания «Фасад Медиа Групп» изготавливает стелы для АЗС в Чебоксарах на профессиональной основе. Мы оказываем следующий перечень услуг:
Как можно видеть, наша компания оказывает полный перечень услуг по изготовлению стел для АЗС в Чебоксарах. Благодаря большому опыту работы и профессионализму наших рабочих, мы качественно оказываем услуги, а работы всегда выполняем в полном объеме и в установленный срок.
Сроки изготовления стел для АЗС в Чебоксарах
Срок изготовления стел для АЗС является одним из важных факторов, поскольку чем быстрее стела будет установлена, тем быстрее тысячи потенциальных покупателей смогут обратить внимание на отображаемую информацию. Зачастую, наши клиенты спрашивают: «Каков минимальный срок изготовления стел для АЗС в Чебоксарах?». Отвечая на данный вопрос, можно отметить, что минимальный срок изготовления стел для АЗС в Чебоксарах составляет 3 рабочих дня. Что касается максимального срока выполнения работ, то он рассчитывается индивидуально исходя из вида конструкции, срочности заказа, сезонности, а также наличия свободных трудовых ресурсов.
Изготовление стел для АЗС можно разделить на несколько этапов:
Несмотря на то, что минимальный срок изготовления стел для АЗС составляет 3 рабочих дня, в некоторых случаях срок изготовления данной конструкции может быть продолжительным. Для получения более подробной информации по данному вопросу, обращайтесь к специалистам нашей компании. Будем рады помочь.
Уважаемые друзья! За изготовлением и установкой стел для АЗС обращайтесь в компанию «Фасад Медиа Групп». Высокий уровень сервиса и низкие цены гарантируем. Мы все сделаем сами: дизайн и эскиз макета, подготовка документов, согласование и монтаж. Фотоотчёт предоставляем бесплатно и в 100% объеме.
Обращайтесь 88002012374@mail.ru или 8 800 201-23-74
Что такое установка стел для АЗС?
Установка стелы для АЗС – это процесс доставки и сборки рекламно-информационной конструкции на заранее определенном месте с применением специализированных инструментов и техники. Установка стел для АЗС также называется монтажом рекламно-информационной конструкции.
Сколько времени требуется на установку стел для АЗС?
Сроки установки стел для АЗС зависят от вида рекламно-информационной конструкции, сложности ее технического устройства, материалов изготовления, а также от количества составных элементов стел для АЗС. Как правило, сборка стел для АЗС занимает от 1 до 3 рабочих дней.
Кто осуществляет сборку и установку стел для АЗС?
Сборку и установку стел для АЗС осуществляют специалисты ООО «Фасад Медиа Групп», которые обладают большим опытом работы. Каждый из наших рабочих, занятый в установке рекламно-информационной конструкции, прошел специальную подготовку и получил допуск от руководства к монтажным работам.
Гарантия после установки стел для АЗС
Некоторые заказчики спрашивают, какие гарантии представляет наша компания после изготовления и установки стел для АЗС? Отвечая на данный вопрос, необходимо отметить, что качество наших работ высокое. Мы используем качественные материалы при выполнении работ по изготовлению стел для АЗС. У нас собственное производство и квалифицированные рабочие, которые прошли обучение по изготовлению стел для АЗС, а также иных рекламно-информационных конструкций.
Изготовленные нами стелы для АЗС рассчитаны более чем на 10-летнюю эксплуатацию. Гарантийный срок эксплуатации составляет 3 и более лет в зависимости от типа конструкции и материалов, применяемых при изготовлении стел для АЗС. Параметры гарантийных обязательств указываются в договоре, поэтому заказчик может быть уверен, что обязательства будут исполнены в полном объеме и в указанный в договоре срок.
Уважаемые друзья! За изготовлением и установкой стел для АЗС обращайтесь в компанию «Фасад Медиа Групп». Высокий уровень сервиса и низкие цены гарантируем. Мы все сделаем сами: дизайн и эскиз макета, подготовка документов, согласование и монтаж. Фотоотчёт предоставляем бесплатно и в 100% объеме.
Обращайтесь 88002012374@mail.ru или 8 800 201-23-74
Рекламное агентство «Фасад Медиа Групп» предлагает гибкие условия изготовления и установки стел для АЗС в Чебоксарах и Республике Чувашия, выгодные цены.
Примеры наших работ по изготовлению и установке стел для АЗС представлены ниже:
![]() |
![]() |
![]() |
Уважаемые друзья! За изготовлением и установкой стел для АЗС обращайтесь в компанию «Фасад Медиа Групп». Высокий уровень сервиса и низкие цены гарантируем. Мы все сделаем сами: дизайн и эскиз макета, подготовка документов, согласование и монтаж. Фотоотчёт предоставляем бесплатно и в 100% объеме.
Обращайтесь 88002012374@mail.ru или 8 800 201-23-74
Принимаем заявку
Позвоните или оставьте
заявку на сайте
Предлагаем услуги
Анализируем проблему
и предлагаем решение
Заключаем договор
Приходим к соглашению и подписываем документы
Оказываем услуги
Выполняем обязательства в полном объеме и в срок
Многие рекламные конструкции находятся в управлении нашего рекламного агентства. Это дает нам возможность устанавливать разумные цены без лишних комиссий и условий.
Наружная реклама
Реклама на радио
Реклама на телевидении
Реклама в интернете и печатных СМИ
Реклама на/в транспорте
Реклама в помещениях
Изготовление рекламы
Фасад Медиа Групп – это высокотехнологичное рекламное агентство, талантливый и креативный коллектив которого воплощает в жизнь сложные, смелые и интересные рекламные проекты.
На сайте используются файлы Cookie и Рекомендательные технологии. Продолжив работу с сайтом, Вы соглашаетесь с Политикой обработки персональных данных и правилами пользования сайтом